1. ホーム
  2. 物件検索
  3. 物件詳細

マンションサーパス五日市南

1 /6

【外観】

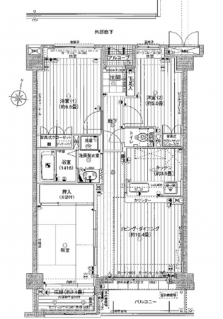
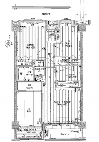
【間取り】

2,800万円

用途地域:第一種住居 
アルコーブ面積:1.22㎡(0.36坪) 内法面積:66.41㎡(20.08坪)
管理費・修繕積立金等:調査中

物件概要

所在地
広島市佐伯区海老園4丁目
価格
2,800 万円
交通

広島電鉄宮島線 楽々園駅 まで 徒歩14分

専有面積
壁芯 70.53㎡
バルコニー
5.83㎡ (南側)
間取り
3LDK
所在階/階数
5階 / 6階
築年数
2001年 (平成13) 9月
築24年
建ぺい率
容積率
土地権利
所有権
構造および階数
RC 造 地上6階建
総戸数
36戸
小学校区
五日市南
中学校区
五日市南
地目
現況
引渡時期
相談
駐車場
駐車場月額
管理形態
管理方式
管理会社
管理費
10,600円
修繕積立費
19,700円
上水道
下水道
ガス
都市計画
用途地域
1種住居
設備・条件
備考
オーシャンビュー(天候による)
取引態様
仲介
周辺地図を確認する

(弊社管理番号: 5000919)

【更新日】2026年04月19日

【次回更新日】2026年05月19日

その他周辺物件

この物件は10の方が興味を持っています。

お気軽にご来店ください ※ご予約をおすすめしております

胡子不動産商事と同じビルになるので、 こちらの1階からお入りください
東陽ハウジング株式会社

〒731-5128 広島県広島市佐伯区五日市中央2丁目1-11

電話番号:082-925-1040 平日 9:00~18:30 土・日・祝日 10:00~17:00 定休日:年末年始・お盆・GW

広島市佐伯区の不動産情報は、東陽ハウジングへ

SNSをフォロー

HPを見たと言って、お気軽にお問い合わせください!

無料相談・お電話窓口

082-925-1040 082-925-1040

〒731-5128 広島県広島市佐伯区五日市中央2丁目1-11
平日 9:00~18:30 土・日・祝日 10:00~17:00
定休日:年末年始・お盆・GW