1. ホーム
  2. 物件検索
  3. 物件詳細

新築一戸建て広島市佐伯区隅の浜2丁目

NEW
1 /9

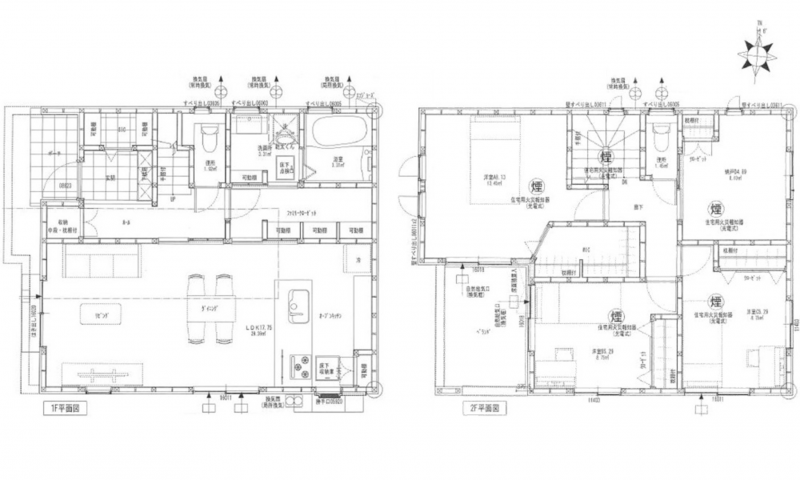
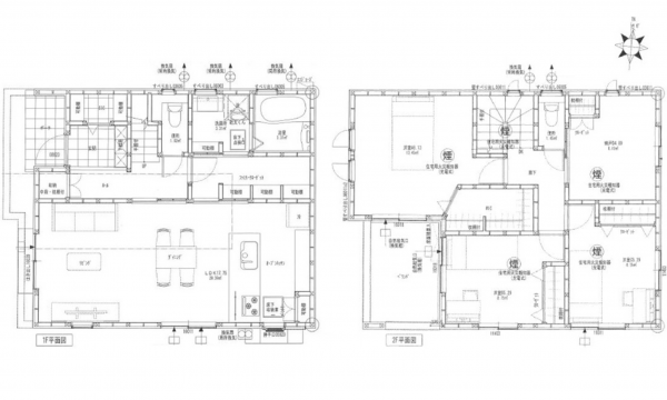
【間取り】

4,580万円

食洗機 カップボード パントリー SIC 
WIC ファミリークローゼット 
エコカラット付き(リビングTV壁面) 網戸 
温水洗浄便座 浴室換気乾燥機 乾太くん 
エアバルブ給湯器 宅配ボックス 外構付き 
ZEH水準省エネ住宅 時期によりカラーセレクト可能

セットバックあり 
後退後の土地面積約119.61㎡(約36.18坪)

物件概要

所在地
広島市佐伯区隅の浜2丁目
価格
4,580 万円
交通

広島電鉄宮島線 楽々園駅 まで 徒歩10分

土地面積
120.76㎡ (36.52坪)
建物面積
107.23㎡ (32.43坪)
間取り
3SLDK
築年数
2026年 (令和8) 4月
建ぺい率
60%
容積率
200%
土地権利
所有権
構造および階数
木造 地上2階建
小学校区
楽々園 (1235m)
中学校区
五日市南 (1638m)
私道負担
地目
宅地
現況
建築中
引渡時期
相談
駐車場
有 3台
上水道
公共
下水道
公共
ガス
都市ガス
都市計画
市街化区域
用途地域
1種住居
建築確認番号
第R07認広建セ00868号
設備・条件
食器洗浄乾燥機、浴室乾燥機、洗浄便座
備考
取引態様
仲介
周辺地図を確認する

(弊社管理番号: 3002531)

【更新日】2025年10月26日

【次回更新日】2025年11月26日

その他周辺物件

この物件は1の方が興味を持っています。

お気軽にご来店ください ※ご予約をおすすめしております

胡子不動産商事と同じビルになるので、 こちらの1階からお入りください
東陽ハウジング株式会社

〒731-5128 広島県広島市佐伯区五日市中央2丁目1-11

電話番号:082-925-1040 平日 9:00~18:30 土・日・祝日 10:00~17:00 定休日:年末年始・お盆・GW

広島市佐伯区の不動産情報は、東陽ハウジングへ

SNSをフォロー

HPを見たと言って、お気軽にお問い合わせください!

無料相談・お電話窓口

082-925-1040 082-925-1040

〒731-5128 広島県広島市佐伯区五日市中央2丁目1-11
平日 9:00~18:30 土・日・祝日 10:00~17:00
定休日:年末年始・お盆・GW