1. ホーム
  2. 物件検索
  3. 物件詳細

新築一戸建て広島市佐伯区海老園3丁目

1 /9

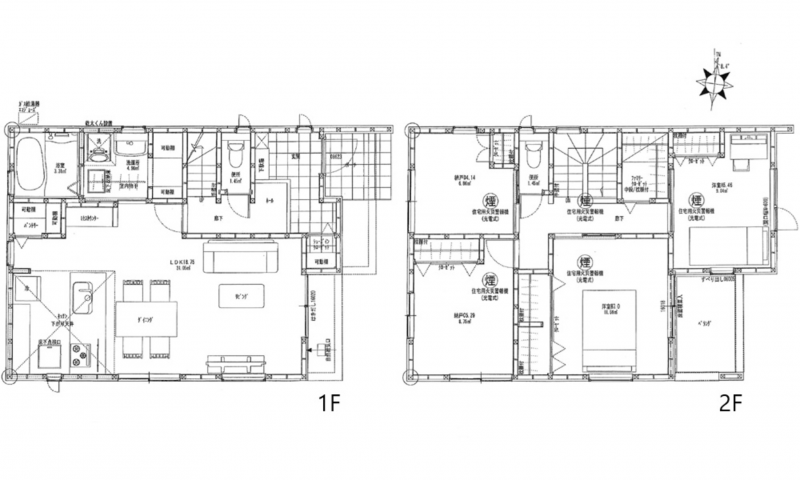
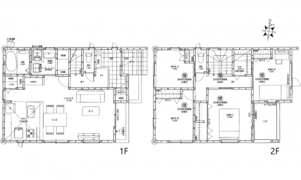
【間取り】

5,080万円


ZEH水準省エネ住宅 
食洗機 カップボード パントリー ミセスカウンター
シューズインクローク ファミリークローゼット
温水洗浄便座 浴室換気乾燥機 リンナイ乾太くん
エコカラット付き(リビングTV壁面) 
宅配BOX 外構付き

物件概要

所在地
広島市佐伯区海老園3丁目
価格
5,080 万円
交通

JR山陽本線 五日市駅 まで 徒歩12分

広島電鉄宮島線 佐伯区役所前駅 まで 徒歩10分

バス停海老山公園前 まで 徒歩7分

接道状況
東側 公道4.3m
土地面積
103.60㎡ (31.33坪)
建物面積
105.16㎡ (31.81坪)
間取り
4LDK
築年数
2026年 (令和8) 3月
建ぺい率
60%
容積率
200%
土地権利
所有権
構造および階数
木造 地上2階建
小学校区
五日市南 (616m)
中学校区
五日市南 (761m)
私道負担
地目
宅地
現況
建築中
引渡時期
相談
駐車場
有 2台
上水道
公共
下水道
公共
ガス
都市ガス
都市計画
市街化区域
用途地域
2種中高
建築確認番号
第R07認広建セ00817号
設備・条件
食器洗浄乾燥機、洗浄便座、浴室乾燥機
備考
取引態様
仲介
周辺地図を確認する

(弊社管理番号: 3002448)

【更新日】2026年04月12日

【次回更新日】2026年05月12日

その他周辺物件

この物件は416の方が興味を持っています。

お気軽にご来店ください ※ご予約をおすすめしております

胡子不動産商事と同じビルになるので、 こちらの1階からお入りください
東陽ハウジング株式会社

〒731-5128 広島県広島市佐伯区五日市中央2丁目1-11

電話番号:082-925-1040 平日 9:00~18:30 土・日・祝日 10:00~17:00 定休日:年末年始・お盆・GW

広島市佐伯区の不動産情報は、東陽ハウジングへ

SNSをフォロー

HPを見たと言って、お気軽にお問い合わせください!

無料相談・お電話窓口

082-925-1040 082-925-1040

〒731-5128 広島県広島市佐伯区五日市中央2丁目1-11
平日 9:00~18:30 土・日・祝日 10:00~17:00
定休日:年末年始・お盆・GW