1. ホーム
  2. 物件検索
  3. 物件詳細

新築一戸建て広島市佐伯区海老園1丁目

1 /9

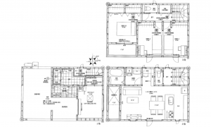
【間取り】

4,480万円

3LDK 
駐車2台可(車種による) 
太陽光発電システム+蓄電池完備

道路位置指定 S47.7.26第30号 
表記建物面積は、車庫部分面積24.02㎡を含む

物件概要

所在地
広島市佐伯区海老園1丁目
価格
4,480 万円
交通

広島電鉄宮島線 佐伯区役所前駅 まで 徒歩9分

土地面積
81.13㎡ (24.54坪)
建物面積
135.06㎡ (40.85坪)
間取り
3LDK
築年数
2025年 (令和7) 11月
建ぺい率
60%
容積率
160%
土地権利
所有権
構造および階数
木造 地上3階建
小学校区
五日市南
中学校区
五日市南
私道負担
地目
現況
建築中
引渡時期
相談
駐車場
有 2台
上水道
下水道
公共
ガス
都市計画
市街化区域
用途地域
1種住居
建築確認番号
第R07認広建セ00150号
設備・条件
駐車場2台分
備考
取引態様
仲介
周辺地図を確認する

(弊社管理番号: 3002395)

【更新日】2025年12月02日

【次回更新日】2026年01月02日

その他周辺物件

この物件は405の方が興味を持っています。

お気軽にご来店ください ※ご予約をおすすめしております

胡子不動産商事と同じビルになるので、 こちらの1階からお入りください
東陽ハウジング株式会社

〒731-5128 広島県広島市佐伯区五日市中央2丁目1-11

電話番号:082-925-1040 平日 9:00~18:30 土・日・祝日 10:00~17:00 定休日:年末年始・お盆・GW

広島市佐伯区の不動産情報は、東陽ハウジングへ

SNSをフォロー

HPを見たと言って、お気軽にお問い合わせください!

無料相談・お電話窓口

082-925-1040 082-925-1040

〒731-5128 広島県広島市佐伯区五日市中央2丁目1-11
平日 9:00~18:30 土・日・祝日 10:00~17:00
定休日:年末年始・お盆・GW